
·þÎñÖ§³Ö
¹ÜµÀÊ©¹¤Éè¼Æ·þÎñΪÂú×ã³ÇÊеÀ·¿ìËÙÊ©¹¤µÄÒªÇó£¬ÂñµØ»¯Ñ§½¨²ÄÅÅË®¹Ü²ÄÌØ±ðÊÇÔÚÉϺ£µÃµ½ÁË´ó¹æÄ£µØÓ¦Óã¬ÌرðÊÇÖÐС¿Ú¾¶£¨Ö±¾¶¡Ü1200mm£©µÄÅÅË®¹ÜµÀ¹¤³Ì£¬ÉϺ£ÖÐÐijÇÇø¾ø´ó¶àÊýʹÓÃÂñµØ»¯Ñ§½¨²Ä¹Ü¡£ÓÉÓÚ´ó¿Ú¾¶ÅÅË®¹ÜµÀ£¨Ö±¾¶£¾1200mm£©ÂñÉîͨ³£½ÏÉ¹Ü²ÄÐèÒª³ÐÊܵĺÉÔØÒ²ÏàÓ¦Ôö´ó£¬³öÓÚ¶Ô»¯Ñ§½¨²ÄÅÅË®¹ÜµÀÖÊÁ¿°²È«ºÍʹÓÃÊÙÃüµÄ¿¼ÂÇ£¬´ó¿Ú¾¶ÅÅË®¹ÜµÀÖл¹Ê¹ÓýÏÉÙ¡£
Ŀǰ£¬ÎÒ¹úÏÖÐеÄÂñµØËÜÁÏÅÅË®¹ÜµÀ¹æ·¶Ö÷ÒªÓÐס½¨²¿µÄ¡¶ÂñµØËÜÁÏÅÅË®¹ÜµÀ¹¤³Ì¼¼Êõ¹æ³Ì¡·£¨CJJ143-2010£©ºÍÉϺ£½¨Î¯2002ÄêµÄ¡¶ÂñµØËÜÁÏÅÅË®¹ÜµÀ¹¤³Ì¼¼Êõ¹æ³Ì¡·£¨DG/TJ08-308-2002£©£¬¹æ·¶ÀïÉæ¼°µÄÉè¼ÆÀíÂÛ¼ÆËãÊDzÎÕÕ¹úÍâÉÏÊÀ¼Í90Äê´úÄ©µÄÃÀ¹ú¡¢Å·Ö޺ͰÄÖÞµÄÏà¹Ø¹æ·¶±ê×¼£¬Ö÷ÒªÊÊÓÃÓÚDN1000ÒÔϵÄÖÐС¿Ú¾¶µÄÅÅË®¹ÜµÀ£¬DN1000ÒÔÉϵĴó¿Ú¾¶ÂñµØËÜÁϹܵÀµÄÀíÂÛ¼ÆËã½öÊDzÎÕÕÖ´ÐС£
Òò´Ë£¬ÎªÂú×ã¿ìËÙÊ©¹¤ºÍÈÕÒæÔö³¤µÄ´ó¿Ú¾¶ÂñµØËÜÁϹܵÄʹÓÃÐèÇóºÍÑо¿ÊÊÓ¦ÐԸߵļÆËãÀíÂÛÌåϵ¡¢È·¶¨¿ÉÑéÖ¤µÄÊ©¹¤·½°¸£¬ÆÈÇÐÐèÒª¿ªÕ¹´ó¿Ú¾¶ÂñµØËÜÁÏÅÅË®¹ÜµÀµÄÓ¦ÓÃÑо¿£¬ÐγɶԴó¿Ú¾¶ÂñµØËÜÁϹܲÄÉú²ú¡¢Éè¼Æ¡¢Ê©¹¤¼°ÑéÊյȷ½ÃæÒ»ÏµÁÐÓ¦Óü¼Êõ¹æ¶¨£¬´Ó¶øÖ¸µ¼ÉϺ£´ó¿Ú¾¶ÂñµØËÜÁÏÅÅË®¹ÜµÀµÄÓ¦Óá£
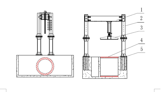
ÉϺ£±ùÇòÍ»ÆÆappÏÂÔØ¿Æ¼¼¹É·ÝÓÐÏÞ¹«Ë¾½¨³ÉÒ»Ì×´ó¿Ú¾¶ËÜÁϹܲÄɳÏäÊÔÑéϵͳ¡£±¾Ì×ɳÏäÊÔÑé×°ÖÃÓÉËÄÁ¢ÖùÃÅʽ¿ò¼Ü½á¹¹Ñ¹Á¦ÊÔÑé»ú¡¢ÒºÑ¹¼ÓÔØ×°Öü°ÓÍ·¡¢´«¸ÐÆ÷²â¿ØÏµÍ³µÈ×é³É£¨Èçͼ2 Ëùʾ£©¡£ÊÔÑéÓÐЧ¿Õ¼ä6000mm¡Á3000mm¡Á2000mm£¬×î´óÊÔÑéÁ¦200¶ÖÁ¦£¬Òƶ¯ºáÁº¿ÉÑØÁ¬½ÓÁºÉÏÏÂÒÆ¶¯µ÷½Ú£¬¹¤³Ì¸×¿ÉÒÔÑØ×ÅÒÆ¶¯ºáÁº×óÓÒÒÆ¶¯µ÷½Ú£¬·½±ã²»Í¬ÔغɼÓÔØµãµÄλÖõ÷Õû¼°Ê©¹¤²Ù×÷¡£É³ÏäÊÔÑé×°ÖõÄ×ÜÌå·½°¸Îª£º½«¹Ü²ÄÆÌÉèÊÔÑé¹µ²ÛÄڵĻù´¡µæ²ãÉÏ£¬°´ÕÕÉè¼Æ·½°¸µÄÌõ¼þ»ØÌî¡¢º»Êµ£¬È»ºóÊ©¼ÓÒ»¶¨µÄ¾²ÔغÉÓڹܶ¥£¬¼Ç¼¹Ü¶¥Ó¦Á¦ºÍ¹ÜµÀ¾¶ÏòÓ¦±äËæÊ±¼äµÄ±ä»¯¡£
1-ÒÆ¶¯ºáÁº£¬2-Ö§³ÅÖù£¬3-ѹ°å£¬4-²âÊԹܲģ¬5-»ìÄýÍÁ¿ò¼Ü
ͼ1 ɳÏäÊÔÑéÔÀíʾÒâͼ

ͼ2 ɳÏäÊÔÑéÏÖ³¡¼°¿ØÖÆÊÒ
½èÖúÓÚ¸ÃÊÔÑéϵͳ£¬¿É¿ªÕ¹¶Ô´ó¿Ú¾¶ÂñµØËÜÁÏÅÅË®¹ÜµÀ£¨¹Ü¾¶¡Ý1200mm£©µÄÉè¼ÆÖ¸±ê¡¢Ê©¹¤¿ØÖÆ¡¢¿¢¹¤ÑéÊÕµÈÏà¹ØÒªÇóµÄÓ¦ÓÃÑо¿¡£ÈçÏ£º
a£©²úÆ·ÀàÐÍ£¨ÂñµØÅÅË®¹ÜµÀ¡¢ËÜÁϼì²é¾®£©£»
b£©¹Ü²Ä²ÄÖÊ£¨HDPE¡¢PP¡¢PVCµÈ£©£»
c£©¹Ü²Ä½á¹¹£¨²¨Îƹܡ¢²øÈƹܡ¢¼Ó½î¹Ü¡¢²£Á§¸Ö¼Ðɰ¹ÜµÈ£©£»
d£©¹Ü²Ä¿Ú¾¶£¨DN300¡«DN2400£©£»
e£©»ØÌî²ÄÁÏ£¨ÍÁ¡¢ÖдÖɰ¡¢Àùʯ¡¢·Ûú»ÒµÈ£©£»
f£©»ØÌîÃÜʵ¶È£¨60¡«95%·¶Î§£©£»
g£©¸²ÍÁ¸ß¶È£¨0¡«15Ã×£©£»
h£©¸÷ÖÖµÀ·¿ìËÙÊ©¹¤»ØÌî¼¼Êõ¡£
½èÖúÓÚɳÏäÊÔÑéϵͳ£¬¿ÉÑо¿²»Í¬µØÃæÔغɡ¢»ØÌî²ÄÁÏ¡¢»ØÌîÃÜʵ¶È¡¢¸²ÍÁ¸ß¶È¡¢¹Ü²Ä¿Ú¾¶¼°¹æ¸ñµÈ¹Ø¼ü²ÎÊý¶Ô¹Ü²Ä±äÐÎÂʵÄÓ°Ïì´óС£¬Í¬Ê±¿ªÕ¹´ó¿Ú¾¶ËÜÁϹܲij¤ÆÚÎȶ¨ÐÔµÄÄ£ÄâÊÔÑ飬»ýÀÛ¹Ü²ÄÆÆ»µÄ£Ê½ºÍÆÆËðÌØÕ÷µÄ»ù´¡Êý¾Ý£¬´Ó¶øÎª¹Ü²ÄÉú²úÆóÒµÌṩ¹Ü²Ä²ÄÖʼ°½á¹¹ÓÅ»¯µÄ·½°¸£¬ÎªÉè¼ÆÔºÌṩ¹¤³ÌÉè¼Æ¡¢Ñ¡Ð͵ÄÒÀ¾Ý£¬Îª½¨É赥λ¡¢¼àÀíµ¥Î»Ìṩ¹¤³ÌÖÊÁ¿°²È«µÄ·ÖÎöÊý¾Ý¡£